Por la Asociación Baza Histórica
“Baza Histórica” le pide a Pedro Fernández Peñalver que se mueva por el patrimonio bastetano, que solicite urgentemente la presentación del proyecto de restauración del palacio de los Enríquez anunciado por el Ministerio de Turismo, dirigido por el PSOE. No debemos olvidar que estamos ante uno de los monumentos más destacados de Andalucía Oriental, residencia del tío de Fernando el Católico y consuegro del papa Alejandro VI (R. Borgia).
El 20/06/2021 el secretario de Estado de Turismo anunció su ayuda para realizar el proyecto de restauración. ¿Dónde está el proyecto? Desde aquí pedirle a Pedro Fernández, como delegado del gobierno en Andalucía, que mueva los hilos para recuperar el monumento más relevante de la ciudad y recordarle que su rehabilitación ha sido una promesa constante de dicho señor en sus programas electorales, cuando fue alcalde de Baza.
En julio de 2021 le pedimos a los representantes de este partido en Baza que reclamaran el proyecto para todo el conjunto monumental: palacio de los Enríquez-convento de San Jerónimo. El nuevo alcalde tomó nota en su cuaderno.
- La ruina del palacio
La ruina de este Monumento Nacional es un verdadero crimen patrimonial que están permitiendo las administraciones. Fue durante el periodo de Pedro Fernández, actual delegado del Gobierno en Andalucía, y penúltimo alcalde de Baza, cuando se introdujo este BIC, y muchos más, en la “Lista Roja” de Hispania Nostra. Por desgracia, dicho señor tiene el honor de haber colocado a nuestra ciudad en el primer puesto del ranquin nacional en ruina patrimonial. Somos la ciudad española con más BIC en ruina.
Está a tiempo de cambiar la imagen (de destrucción patrimonial) que dejará el periodo de su gobierno municipal para la historia del patrimonio local. Oportunidades para demostrar que le interesa su pueblo tiene constantemente, la última cuando se presentó a FITUR a finales de enero. ¿Habrá pedido ayuda al Ministerio de Turismo, al presidente de España?
Aquí lo vemos junto la Dama de Baza, a quién le gustaría tener una ciudad con un patrimonio recuperado y no la urbe más ruinosa de España.
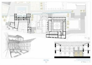
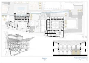
Es importante indicar que existe un anteproyecto de rehabilitación aprobado para recuperar todo este conjunto monumental (palacio-convento), primer premio del jurado del concurso de arquitectura tradicional Richard H. Driehaus (2017). El 15 de junio de 2018 Pedro Fernández, siendo alcalde de Baza, anunciaba que ya disponían de un anteproyecto y que contaba con el aval de los ministerios de Cultura y Fomento y del prestigioso INTBAU. Que sólo tenían que avanzar en la redacción de los proyectos de ejecución y conseguir la inversión necesaria para desarrollarlo.
Es indignante comprobar el valor excepcional, a nivel andaluz, de las carpinterías policromadas del BIC y ver cómo están perdiéndose en muchos puntos por no cumplirse la LEY del PATRIMONIO y los compromisos de la Junta. Un verdadero atentado contra el Patrimonio. La ruina puede apreciarse en los pabellones asomados al caz (apuntalamientos, desprendimientos), en la torre y en el ala norte.
A nosotros, como a cualquier bastetano, nos gustaría que las techumbres policromadas estuvieran en buen estado, similar a la que pueden apreciar a continuación (que aún sin restaurar, impresionan a quién las observe)…
Si el señor Pedro Fernández no actúa rápido seguiremos perdiendo esta joya del patrimonio andaluz. Ya han desparecido muchas pinturas y están siendo afectas bastantes. Miren el informe presente en el proyecto de restauración de la Universidad Politécnica de Cartagena. Da la voz de ALARMA sobre los graves problemas de la pérdida de maderas y de las magníficas policromías.
Desde aquí agradecer al ayuntamiento que abra algunas dependencias del palacio a los ciudadanos. Pero sentimos decirles que los problemas (humedad galopante) que tenía antes de las últimas intervenciones no pueden desaparecer con unas capas de pintura y la iluminación. Las enormes filtraciones siguen afectando a los muros de tapial del palacio y a las carpinterías policromadas y seguirán hasta que no se impermeabilice el caz que pasa junto y bajo el palacio.
Los problemas (y graves) también están presentes en los salones de la planta superior, tal y como afirmó el arqueólogo. Pues la intervención del siglo pasado, por el Ministerio, no fue acertada.
- Las promesas de restauración por parte del PSOE y PP durante casi dos décadas
Es vergonzoso ver cómo están llegando millones de euros para el patrimonio español por parte de Europa y nada vendrá para Baza. Si el PSOE, partido de este señor, tuviera el proyecto preparado, el conjunto monumental podría salvarse rápidamente. El Ministerio debería colaborar económicamente y obligar a la Junta a cumplir los compromisos del Parlamento Andaluz, los de restaurar el palacio de inmediato.
El PSOE lleva décadas engañándonos. No ejecuto el proyecto de restauración integral anunciado desde el 10/11/2004, con un plazo de 60 días y con un presupuesto de 487.000 euros. En 2009 la Junta se comprometía a hacerse cargo de su rehabilitación, (BOPA 332, pp. 13-14) que aseguraba su restauración integral, con presupuestos para 2010. La Consejería volvió a anunciarlo el 28/2/2010 y el 29/01/2012.
Desde 2014 se aprobó (de nuevo) en el Parlamento la intervención del palacio a instancias del PP. A partir de entonces todos los años dicho partido lo ha reivindicado (13/11/2015, 26/11/2017, 21/07/2018, 18/08/2018). A finales del 2018, ante las elecciones, el PP pregonaba que si queríamos ver este monumento restaurado confiásemos en su partido. En 2019 lo volvieron a prometer. El PP lleva tres años dirigiendo la Junta y no ha hecho nada, solo mentirnos e invertir en poblaciones cercanas a Baza. Nos está engañando como lo hizo el PSOE.
La Oficina del Defensor pudo apreciar, en su visita del 27 de enero, una de las sinvergonzonerías más grandes de la democracia en España. Como los políticos de derechas e izquierdas nos han mentido década tras década, no han cumplido con la Ley del Patrimonio y los compromisos de la Junta. La rehabilitación del palacio de los Enríquez es la gran asignatura del pendiente del PP y del PSOE en Andalucía Oriental. Esperemos que Pedro Fernández mueva los hilos para que esto cambie de inmediato. Nos lo debe a los bastetanos.





